En tant que fabricant mature de centrale à béton fixe, HAMAC a conçu cette centrale à béton fixe de série qui convient à la vente commerciale de béton et à ses propres projets. Il est équipé de composants de marque célèbres tels que des vérins pneumatiques, des vibrateurs, un compresseur d'air, une bétonnière et des moteurs SICOMA, etc.
Principe de fonctionnement :
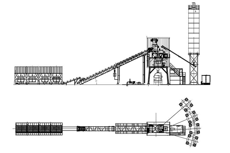
Une chargeuse sur pneus alimentera les 4 trémies différentes pour des agrégats de différentes tailles, puis les agrégats et le sable seront pesés par les cellules de charge, et le ciment provient du silo à ciment par le convoyeur à vis, l'eau est fournie par la pompe à eau sera également pesés par différentes cellules de charge, puis tous ces matériaux seront introduits dans le mélangeur pour être mélangés. Après le malaxage, le béton sera déversé dans le camion malaxeur à béton. Tous les processus de pesage, de mélange et de déchargement sont contrôlés automatiquement par le logiciel.
Type de convoyeur à bande centrale à béton
Passer la centrale à béton de type palan
Avantages
- 1. Sautez le système d'alimentation de trémie ou le système d'alimentation de convoyeur à bande, pour différentes conditions ;
- 2. Adoptez une bétonnière de type forcé à double arbre horizontal ou une bétonnière planétaire, elle adopte deux boîtes de vitesses à usage intensif, un système de lubrification électrique, un système de décharge hydraulique, un dispositif de mélange durable, etc.
- 3. Excellente protection de l'environnement, système de dépoussiérage et conception anti-bruit.
- 4. Système de pesage précis (agrégat, ciment, eau, additif).
- 5. Contrôle PC + PLC, affiche de manière vivante le processus de production sur l'écran, de sorte que l'opérateur puisse surveiller en temps réel; enregistrer les données des périmètres de production dans l'ordinateur, imprimer des rapports statistiques quotidiens, mensuels ou annuels de production.








