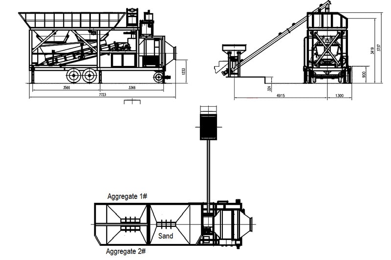
En tant que fabricant mature de centrale à béton portable, HAMAC a conçu cette centrale à béton portable de série qui convient à certains projets qui se terminent toujours en peu de temps. Trois trémies pour différentes tailles d'agrégats et de sable sont équipées, une trémie pour le ciment et un convoyeur à vis sont également équipés. Pour tous les matériaux qui seront introduits dans la bétonnière, il existe un système de pesée pour en contrôler la quantité. Ainsi, la qualité du béton est strictement contrôlée. La plupart du temps, le béton de cette machine sera collecté par un dumper et transporté.
Principe de fonctionnement :
Une chargeuse sur pneus alimentera les trois trémies différentes pour différentes tailles d'agrégats et de sable, puis les agrégats et le sable seront pesés par les cellules de charge, et le ciment provient de la trémie à ciment ou du silo à ciment par le convoyeur à vis, l'eau est fournie par la pompe à eau sera également pesée par différentes cellules de charge, puis tous ces matériaux seront introduits dans le mélangeur pour le mélange. Après le malaxage, le béton sera déversé dans le camion malaxeur à béton ou le dumper.

Avantages
1. La structure est compacte et presque tous les processus de production de béton sont concentrés sur la remorque ;2. Pas besoin de préparer la fondation, elle peut fonctionner dès son arrivée sur le chantier ;
3. Bétonnière à deux options, bétonnière à tambour et bétonnière à double arbre ;
4. Il peut être installé dans un conteneur de 40 pieds pour la machine complète ;
5. Un silo à ciment ou une trémie à ciment peut être équipé de cette centrale à béton portable.







